Trilocale in vendita

Firenze, Via Dogali - Mille
€ 290.000
79 Mq 79 Mq
1 bagno 1 bagno

Trilocale in vendita

Firenze, Via Dogali - Mille

Descrizione annuncio

VIA DOGALI:

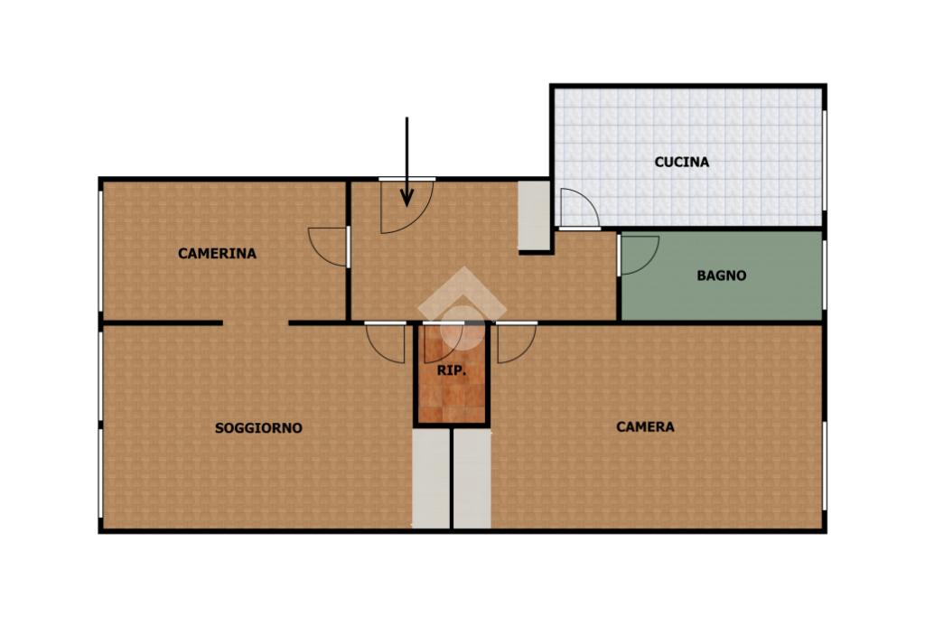
3,5 locali posto al piano terra rialzato di una palazzina situata in complesso dotato di spazi verdi comuni, posti moto/bici condominiali e servizio di videosorveglianza.

L'immobile è composto da ingresso/disimpegno, soggiorno collegato a una camera singola, camera matrimoniale, cucina abitabile e bagno finestrato.

Completa la proprietà la cantina posta al piano seminterrato dello stesso stabile.

L'immobile, pur essendo posto a un piano terra, è dotato di numerose e ampie finestre, la maggior parte delle quali si estendono per tutta la lunghezza della parete.

Le condizioni dell'appartamento sono buone, si rendono necessari semplici interventi di ammodernamento.

Il condominio è dotato di un servizio di videosorveglianza, oltre ampi spazi verdi comuni e posti moto/bici non assegnati.

La posizione dell'appartamento è strategica, all'interno del richiestissimo quartiere delle Cure, a due passi da qualsiasi tipo di servizio o attività. Si rende perciò ideale per essere acquistato come abitazione principale di un nucleo familiare non molto numeroso o come investimento per essere messo a reddito.

L'immobile, accatastato come civile abitazione, è attualmente adibidito ad asilo nido domiciliare, e si libererà a Luglio 2027, quando cesserà anche l'attività.

Mostra tutto

Nelle vicinanze

Trasporto pubblico Trasporto pubblico
stazione di Firenze Campo di Marte
stazione di Firenze Campo di Marte
910 m
stazione di Firenze Statuto
stazione di Firenze Statuto
1,8 Km
Strozzi - Fallaci
Strozzi - Fallaci
1,7 Km
Statuto
Statuto
1,7 Km
Volta Piazzuola
Volta Piazzuola
40 m
Ricariche auto elettriche Ricariche auto elettriche
Eneldrive Ataf
100 m
Eneldrive (ex SILFI) Piazza delle Cure
290 m
Eneldrive (ex SILFI) Masaccio
460 m
Eneldrive (ex SILFI) Volta
540 m
Eneldrive (ex SILFI) Castagno
560 m
Scuole Scuole
Scuole
290 m
Scuola Secondaria di Primo Grado "Italo Calvino"
320 m
Liceo Statale Giovanni Pascoli
360 m
Scuola dell'Infanzia "Garibaldi"
390 m
Scuola Primaria "Collodi"
500 m
Farmacia Farmacia
Antica Farmacia del Pino
150 m
Farmacia
190 m
Farmacia Centostelle
500 m
Farmacia Donatello
770 m
Farmacity
830 m
Ospedali Ospedali
Villa Donatello
820 m
Ospedale di Santa Maria Nuova
1,6 Km
Unità spinale
2,5 Km
Centro traumatologico ortopedico - CTO
2,6 Km
Ospedali
2,6 Km
Supermercati Supermercati
COOP.fi
360 m
Esselunga
450 m
Marguerita Conad
730 m
Carrefour Express
1,3 Km
Penny Market
1,4 Km
Negozi Negozi
OVS
90 m
Terranova
110 m
Calzedonia
120 m
Lorenzetti
140 m
Intimissimi
160 m
Bar Bar
Cabaret
300 m
Caffè Marconi
350 m
Chapeau
520 m
Bar
540 m
Panico
620 m
Ristoranti Ristoranti
Re Matto
120 m
Wabi Sabi
150 m
La Passera di Mare
160 m
Osteria delle Tre Panche
170 m
Ristoranti
190 m
Mostra tutto

Caratteristiche

Rif.:
61178210
Piano:
Terra di 4 con ascensore
Totale piani:
4
Balconi:
2
Camere da letto:
1
Arredamento:
Assente
Mostra tutto
Prezzo Prezzo
€ 290.000
Rata mutuo Rata mutuo
€ 1.367 / mese
Spese annue Spese annue
€ 2.400
Proponi il tuo prezzoProponi il tuo prezzo

Classe Energetica

G
G
G
G
G
G
G
G
G
EP invernale del fabbricato:
EP estiva del fabbricato:
Anno di costruzione:
1950
Riscaldamento:
Centralizzato
Tipo impianto:
A radiatori
Tipo alimentazione:
Metano

Ti interessa visionare l'immobile?

Fissa un appuntamento  Fissa un appuntamento

Richiedi informazioni

Clicca su Leggi per aprire l'informativa
* Questi campi sono obbligatori

Calcola il tuo mutuo

Semplice e senza impegno
Anticipo

( % )
Mutuo

( % )

pochi semplici passi

inserisci i tuoi dati
Questionario completato
Grazie per aver richiesto un appuntamento senza impegno con un nostro Consulente del Credito e Assicurativo.

Hai inserito correttamente tutti i dati necessari e a breve riceverai una e-mail con un link da convalidare per inviare i tuoi dati.
Affiliato
Studio Marconi-Volta Sas
Via Luigi Galvani, 1-3R 50122 Firenze (FI)

Il nostro staff


  • Marco Manfredini
    Affiliato
Via Luigi Galvani, 1-3R 50122 Firenze (FI)
Zona: Firenze-Marconi-Volta-Mille
Mostra su mappa
Orari: Dal lunedì' al venerdì dalle 09.00 alle 13.00 e dalle 15.30 alle 20.00 Sabato dalle 09.00 alle 13.00 e dalle 15.30 alle 18.00
Affiliato
Studio Marconi-Volta Sas
Via Luigi Galvani, 1-3R 50122 Firenze (FI)

2026 Tecnocasa Franchising S.p.A. - P. IVA 08365160152 - Via Monte Bianco 60/A 20089 Rozzano (MI). Ogni agenzia ha un proprio titolare ed è autonoma. Privacy policy | Policy utilizzo | Cookie policy